Zwolle – Molenweg 301

Status
Verkocht

Woonoppervlakte
116 m2
Aantal kamers
4
Bouwjaar
1936
Perceeloppervlakte
154 m2

Sfeervolle, uitgebouwde eengezinswoning in Assendorp met energielabel A!

Gelegen op een mooie locatie in de wijk Assendorp treft u deze karakteristieke jaren 30-woning. Het veelzijdige winkelaanbod va de Assendorperstraat en het populaire Wezenlandenpark bevinden zich op loopafstand van de woning. Ook scholen, het station, het historische centrum, de uitvalswegen en sportvoorzieningen bevinden zich op korte afstand van de woning en zijn gemakkelijk bereikbaar.

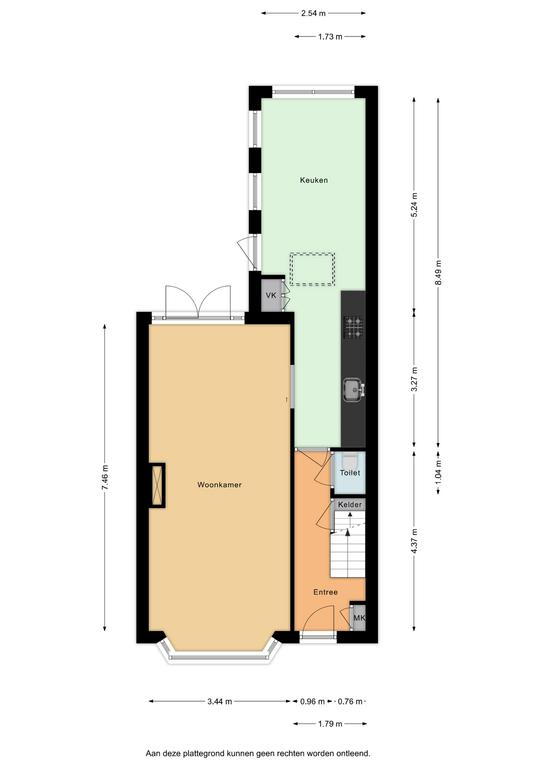
Dan de woning… De ruime voortuin zorgt voor privacy en geeft tegelijkertijd ruimte voor fietsen ofwel een leuke zitplek! Zowel aan de buiten- als aan de binnenzijde zijn de karakteristieke details goed bewaard gebleven. De terrazzo vloer in de hal is uitnodigend en kenmerkend voor deze jaren ’30 woning. De woonkamer is al even sfeervol met aan de voorzijde een prachtige erker, zichtbaar balkenplafond en eikenhouten vloer. Het zitgedeelte is aan de achterzijde gelegen, via de openslaande deuren heeft u van hieruit toegang tot de tuin.

De woning is aan de achterzijde uitgebouwd, hier bevindt zich de keuken en is ruimte voor een eethoek of thuiswerkplek. De keukenopstelling, met bijpassende (provisie)kasten, is op maat gemaakt en extra hoog en diep. Dit zorgt voor een optimaal gebruik van de ruimte én voor veel werk- en kastruimte! De klassieke kasten met het natuurstenen blad geven een landelijke en rustige uitstraling. Achterin de keuken is een heerlijke zit-/werkplek gecreëerd, een ideale plek om een boek te lezen of te kletsen tijdens het koken! Ook kan dit een gezellige eethoek zijn. De aanbouw is voorzien van comfortabele vloerverwarming.

Op de eerste etage bevinden zich 2 slaapkamers, een separate wasruimte en de badkamer. De slaapkamers zijn licht en ruim. De ouderslaapkamer is voorzien van inbouwkasten met de prachtige kenmerkende paneeldeuren. De badkamer is opgesteld in neutrale kleuren en voorzien van een bad met douche, toilet en op maat gemaakt wastafelmeubel. De vloer met vloerverwarming is helemaal in stijl met de karakteristieke elementen in de rest van de woning!

Op de overloop bevindt zich een aparte wasruimte, tevens is van hieruit toegang naar de tweede etage via een vaste trap.
Hier bevindt zich een derde slaapkamer, licht en ruim dankzij de dakkapel aan de achterzijde. De voorzolder met in een maatkast weggewerkte cv-opstelling biedt zelfs nog een werkplek.

De diepe tuin met achterom is onderhoudsvriendelijk aangelegd met zowel aan de achterzijde als aan de zijkant van de woning een fijn terras, gescheiden door gras. De plantenborders en klimophaag zorgen voor een groene uitstraling. Achterin de tuin bevindt zich een ruime, stenen berging. Ideaal voor (elektrische) fietsen en tuingereedschap.

Uw droomwoning samengevat:
– Sfeervolle eengezinswoning;
– prachtige karakteristieke en authentieke elementen;
– 3 ruime slaapkamers;
– gunstige locatie;
– goed onderhouden en verzorgd;
– diepe tuin met achterom;
– voorzien van 7 zonnepanelen (2021);
– energielabel A.

  • Status
    Verkocht
  • Koopprijs
    489.000
  • Type
    Tussenwoning
  • Soort
    Eengezinswoning
  • Soort Bouw
    Bestaande bouw
  • Inhoud
    425 m3
  • Aantal kamers
    4
  • Aantal slaapkamers
    3
  • Energieklasse
    A
  • Woonoppervlakte
    116 m2
  • Inhoud
    425 m3
  • Perceeloppervlakte
    154 m2
  • Soorten verwarming
    CV ketel, Vloerverwarming gedeeltelijk
  • Tuintypen
    Achtertuin, Voortuin
  • Koopconditie
    k.k.
  • Aanvaarding
    In overleg

Plattegronden