Zwolle – Lindestraat 31

Status
Verkocht

Woonoppervlakte
91 m2
Aantal kamers
4
Bouwjaar
1905
Perceeloppervlakte
114 m2

Sfeervol wonen in het geliefde Assendorp!

Wat een plaatje! Deze woning is er écht een om verliefd op te worden. Met zorg bewoond en daarnaast zeer goed onderhouden en gemoderniseerd. Het huis is instapklaar en bovendien voorzien van energielabel B.

Aan de Lindestraat, een rustige en karaktervolle straat in de populaire wijk Assendorp, staat deze charmante tussenwoning uit 1905. Een sfeervol woonhuis waar karakter samenkomt met comfort en een verrassend ruime indeling. Dankzij de centrale ligging woont u hier op korte afstand van het bruisende centrum van Zwolle, het station en diverse voorzieningen. Het woonerf maakt dat de straat zelf juist rustig en gemoedelijk aanvoelt. Bewoners wandelen naar de Assendorperstraat voor dagelijkse boodschappen en koffie. Een ideale ligging voor wie graag stedelijk woont, maar ook waarde hecht aan een prettige en kindvriendelijke woonomgeving.

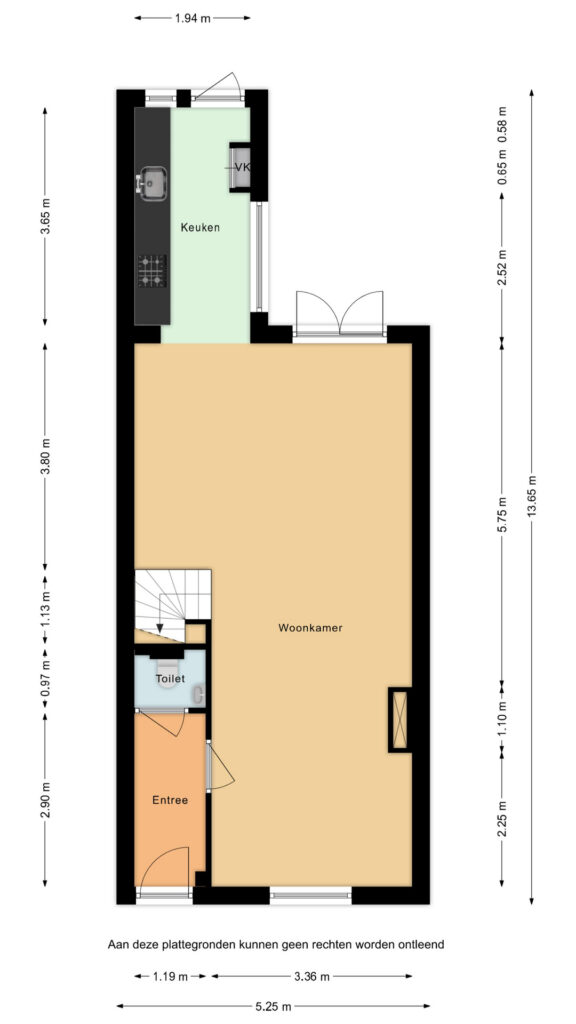
Bij binnenkomst wordt u verwelkomd in de hal met toegang tot het stijlvol betegelde toilet en een woonkamer vol sfeer. De woonkamer is een fijne leefruimte met glas-in-lood ramen aan de voorzijde en openslaande deuren aan de achterzijde. Hierdoor profiteert u van veel lichtinval en een prettige verbinding met de tuin. De open haard zorgt voor extra sfeer en warmte.

Aan de achterzijde van de woning bevindt zich de moderne keuken, uitgevoerd in een efficiënte rechte opstelling en voorzien van alle benodigde inbouwapparatuur. Onder de keuken bevindt zich een ruime kelder. Vanuit de keuken heeft u eveneens toegang tot de achtertuin, wat het dagelijks gebruik zeer comfortabel maakt.

Op de eerste verdieping geeft de overloop toegang tot alle vertrekken. Hier treft u drie slaapkamers, waarvan één aan de achterzijde en twee aan de voorzijde van de woning. De grootste slaapkamer heeft een aparte ruimte voor de wasmachine en cv-ketel, praktisch en netjes uit het zicht. De badkamer is centraal gelegen en voorzien van een douche, wastafelmeubel, toilet en lichtkoepel.

De achtertuin is verrassend ruim en ligt gunstig op het zuidoosten. Hierdoor geniet u hier van zowel de ochtend- als middagzon. De tuin is verzorgd aangelegd en biedt voldoende ruimte voor meerdere zitplekken. Achterin de tuin staat een vrijstaande stenen berging, ideaal voor fietsen en tuinspullen.

Bijzonderheden:
– Gelegen in de populaire wijk Assendorp;
– bouwjaar 1905;
– woonoppervlakte van circa 91 m²;
– 3 slaapkamers;
– ruime kelder met opbergruimte;
– grotendeels HR++;
– energielabel B.

  • Status
    Verkocht
  • Koopprijs
    485.000
  • Type
    Tussenwoning
  • Soort
    Eengezinswoning
  • Soort Bouw
    Bestaande bouw
  • Inhoud
    325 m3
  • Aantal kamers
    4
  • Aantal slaapkamers
    3
  • Energieklasse
    B
  • Woonoppervlakte
    91 m2
  • Inhoud
    325 m3
  • Perceeloppervlakte
    114 m2
  • Soorten verwarming
    CV ketel
  • Tuintypen
    Achtertuin
  • Koopconditie
    k.k.
  • Aanvaarding
    In overleg

Plattegronden