Zwolle – Koewegje 11

Status
Verkocht

Woonoppervlakte
131 m2
Aantal kamers
6
Bouwjaar
2006

Moderne instapklare eengezinswoning met parkeergelegenheid in hartje Zwolle!

Op een rustige locatie aan het Koewegje, net buiten het historische centrum van Zwolle, ligt deze moderne en verzorgde eengezinswoning uit 2006. De woning bevindt zich op loopafstand van de stadsgracht, winkels en gezellige horeca, en op fietsafstand van het station. Zo combineert deze woning het beste van twee werelden: comfortabel wonen in een rustige straat met de levendigheid van de stad om de hoek. Parkeren is geen probleem want er is parkeerruimte in de door de VvE beheerde parkeerkelder.

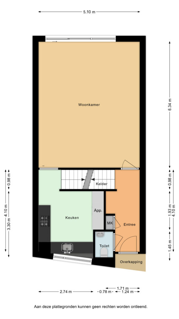
Via een trapje komt u bij het entree, vergezeld door een kleine, voor privacy zorgende, voortuin. De hal met meterkast en toilet leidt naar de woonkamer aan de achterzijde, met toegang tot de achtertuin middels een grote schuifpui, welke zorgt voor veel natuurlijk licht.
Aan de voorzijde is de keuken gelegen, opgesteld in landelijke stijl met veel kastruimte en is voorzien van divers inbouwapparatuur (2019) waaronder een Quooker, vaatwasser, koelkast, oven en combimagnetron.

Vanuit de hal komt u middels een trap in de kelder. Hier heeft u twee ruimtes tot uw beschikking die naar eigen wens kunnen worden gebruikt. De huidige bewoners hebben hier twee hobbyruimtes van gemaakt. De ruimtes zouden ook goed kunnen worden gebruikt als extra logeerplekken, opslag of misschien wel kantoorruimte. Vanuit het souterrain komt in de parkeerkelder.

Op de eerste verdieping bevinden zich drie slaapkamers. De badkamer is vernieuwd in 2025 en beschikt over een ligbad, inloopdouche, wastafelmeubel en toilet. Er is gebruik gemaakt van een grote tegel zowel op de vloer als op de wand in lichte kleur. Gecombineerd met het houtaccent van het wastafelmeubel zorgt dit voor een fijne rustige sfeer. Op de overloop is een berging met wasmachineaansluiting en CV ketel (uit 2022) aanwezig, voor extra gebruiksgemak.

De achtertuin is verzorgd aangelegd, ligt op het noordwesten en is tevens bereikbaar via een achterom. Middels de zonwering aan de achtergevel kunt u ook in de schaduw van de tuin genieten.
De goede isolatie, waaronder HR++ glas, en de aanwezigheid van 20 zonnepanelen heeft geresulteerd in een energielabel A+.

Bijzonderheden:
•. Rustige ligging op loopafstand van de binnenstad;
• drie slaapkamers en twee multifunctionele ruimtes in souterrain;
• volledig geïsoleerd, incl. HR++-glas;
• Intergas-cv-ketel uit 2022;
• achtertuin met achterom
• twee parkeerplekken in de parkeerkelder (bijdrage VvE € 58,07 p/mnd.

  • Status
    Verkocht
  • Koopprijs
    595.000
  • Type
    Tussenwoning
  • Soort
    Eengezinswoning
  • Soort Bouw
    Bestaande bouw
  • Inhoud
    505 m3
  • Aantal kamers
    6
  • Aantal slaapkamers
    3
  • Energieklasse
    A+
  • Woonoppervlakte
    131 m2
  • Inhoud
    505 m3
  • Soorten verwarming
    CV ketel
  • Tuintypen
    Achtertuin, Voortuin
  • Koopconditie
    k.k.
  • Aanvaarding
    In overleg

Plattegronden